Plumbing layout of 54x25m municipal office plan is given in this Autocad drawing file.Download now.
Description
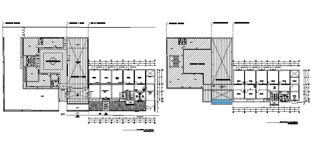
Plumbing layout of 54x25m municipal office plan is given in this Autocad drawing file. This is G+ 2 municipal office building. Reception, waiting area, office work station, director room, secretary room, conference hall, gent’s toilet, ladies toilet, dining area and record rooms are available in the first floor. Office work area, gent’s toilet, and ladies toilet is available in this second floor. For more details download the Autocad drawing file. Thank you for downloading the Autocad drawing file and other CAD program files from our website.
File Type:
DWG
File Size:
1002 KB
Category::
Dwg Cad Blocks
Sub Category::
Autocad Plumbing Fixture Blocks
type:
Free
Uploaded by:
