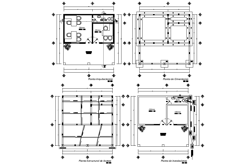
7x7m office plan is given in this Autocad drawing file Download now.
Description
7x7m office plan is given in this Autocad drawing file. This is single story office building. Office room, foundation layout, beam layout and column layouts are specified in this drawing file. For more details download the Autocad drawing file. Thank you for downloading the Autocad drawing file and other CAD program files from our website.
Uploaded by:

