70x65m second floor hotel plan is given in this Autocad drawing file. Download now.
Description
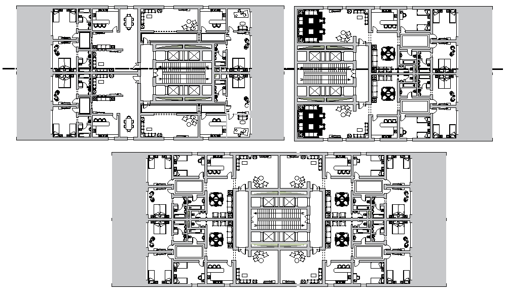
70x65m second floor hotel plan is given in this Autocad drawing file. This is multistory hotel building. In this floor hall, staying room with attached bathroom, waiting area, reception, lounge area, gent’s toilet, ladies toilet, and store room is available. For more details download the Autocad drawing file. Thank you for downloading the Autocad drawing file and other CAD program files from our website.
Uploaded by:

