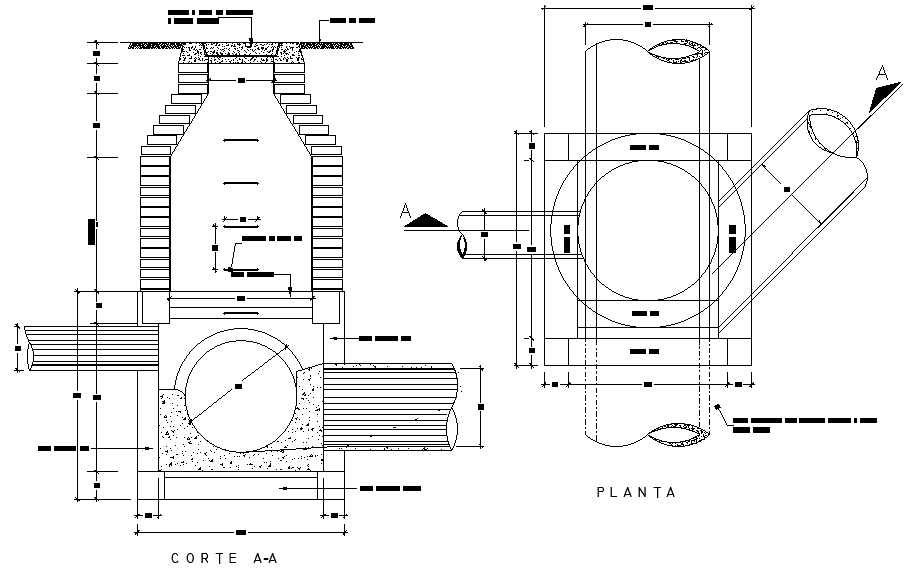
Box well structure detail drawing is given in this Autocad drawing file.Download now.
Description
Box well structure detail drawing is given in this Autocad drawing file. Structural components are specified in this drawing model. For more details download the Autocad drawing file. Thank you for downloading the Autocad drawing file and other CAD program files from our website.
Uploaded by:

