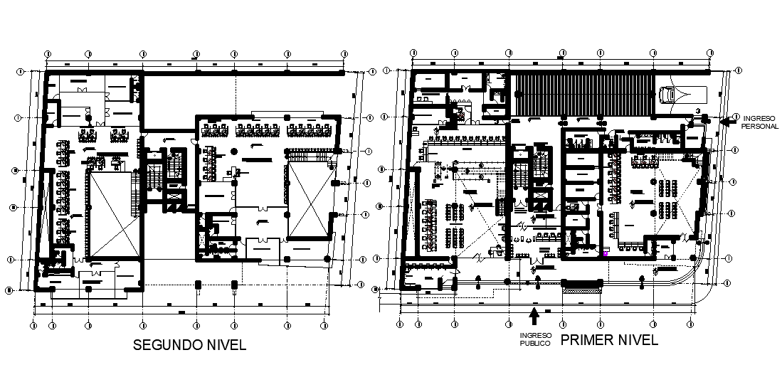
42x31m second floor financial office plan is given in this Autocad drawing file.Download now.
Description
42x31m second floor financial office plan is given in this Autocad drawing file. This is multistory financial office building. Individual cabins are provided for each employee, gent’s toilet, ladies toilet, meeting room, waiting area, reception, control room, and other details are specified in this model. For more details download the Autocad drawing file. Thank you for downloading the Autocad drawing file and other CAD program files from our website.
Uploaded by:

