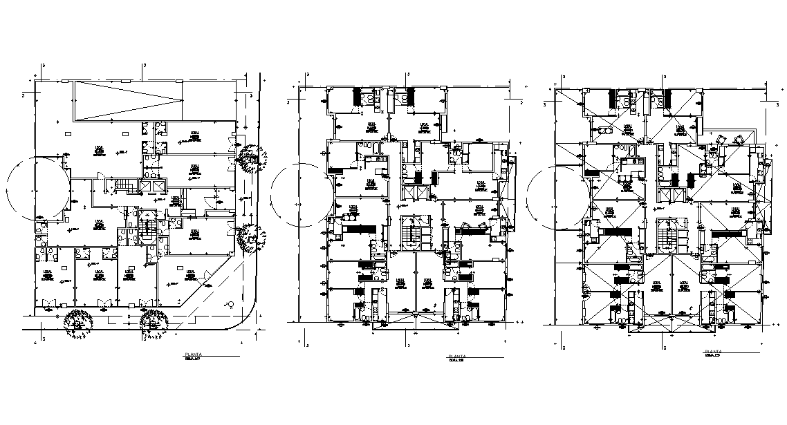
22x28m commercial first floor plan is given in this Autocad drawing file.Download now.
Description
22x28m commercial first floor plan is given in this Autocad drawing file. This is multistory office building. In the local shops, gent’s toilet, ladies toilet, ware house, and office cabin is available. For more details download the Autocad drawing file. Thank you for downloading the Autocad drawing file and other CAD program files from our website.
Uploaded by:

