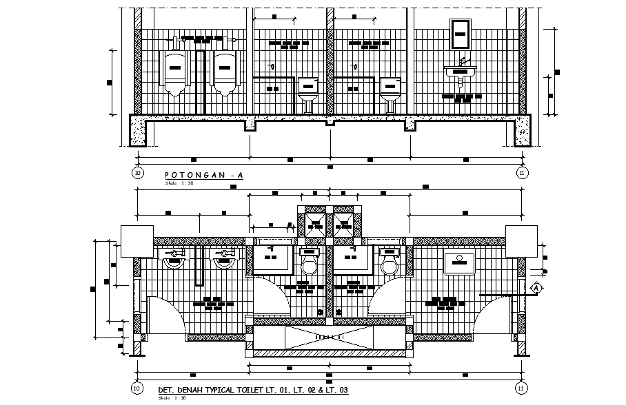
7x2m toilet room plan is given in this Autocad drawing file.Download the Autocad model.
Description
7x2m toilet room plan is given in this Autocad drawing file. Height of the toilet is 2m. In this urinal, water closet and wash basin is available. For more details download the Autocad drawing file. Thank you for downloading the Autocad drawing file and other CAD program files from our website.
Uploaded by:

