Coagulated water distribution channel is given in this Autocad drawing file. Download now.
Description
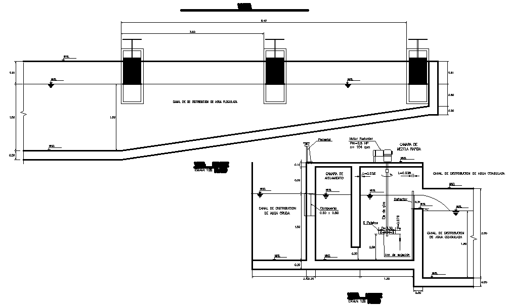
Coagulated water distribution channel is given in this Autocad drawing file. Flocculated water distribution channel has given in this model. Section views of the channels are given. For more details download the Autocad drawing file. Thank you for downloading the Autocad drawing file and other CAD program files from our website.
File Type:
DWG
File Size:
2.4 MB
Category::
Urban Design
Sub Category::
Town Water Treatment Design
type:
Free
Uploaded by:

