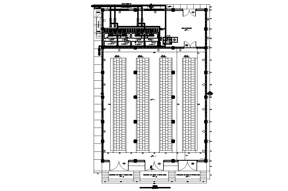
16x27m warehouse plan is given in this Autocad drawing file.Download the Autocad model.
Description
16x27m warehouse plan is given in this Autocad drawing file. This is given for water treatment plant. This warehouse is used to store the chemicals. For more details download the Autocad drawing file. Thank you for downloading the Autocad drawing file and other CAD program files from our website.
File Type:
DWG
File Size:
2.5 MB
Category::
Urban Design
Sub Category::
Town Water Treatment Design
type:
Gold
Uploaded by:

