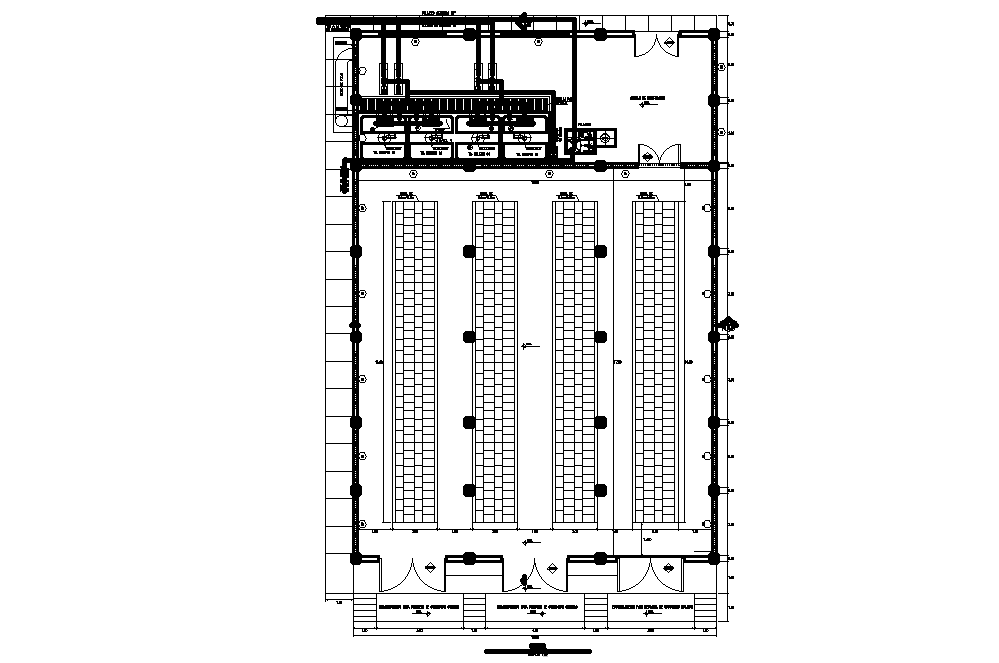
A section view of 16x27m warehouse building is given in this Autocad drawing file.Download now.
Description
A section view of 16x27m warehouse building is given in this Autocad drawing file. This is given for water treatment plant. This warehouse is used to store the chemicals. For more details download the Autocad drawing file. Thank you for downloading the Autocad drawing file and other CAD program files from our website.
File Type:
DWG
File Size:
2.5 MB
Category::
Structure
Sub Category::
Section Plan CAD Blocks & DWG Drawing Models
type:
Free
Uploaded by:

