An electrical layout of 9x35m house cum guest room plan is given in this Autocad drawing file.Download now.
Description
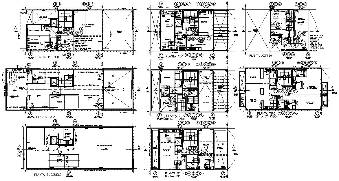
An electrical layout of 9x35m house cum guest room plan is given in this Autocad drawing file. In this roof floor, all floor plans and column layouts are given. This is G+ 3 house building. These plans are consists of office, kitchen, dining area, living hall, master bedroom with attached toilet, bath tub, kid’s room, three guest rooms with attached bathroom and terrace floor is available.For more details download the Autocad drawing file. Thank you for downloading the Autocad drawing file and other CAD program files from our website.
File Type:
DWG
File Size:
1.3 MB
Category::
Electrical
Sub Category::
Electrical Automation Systems
type:
Gold
Uploaded by:

