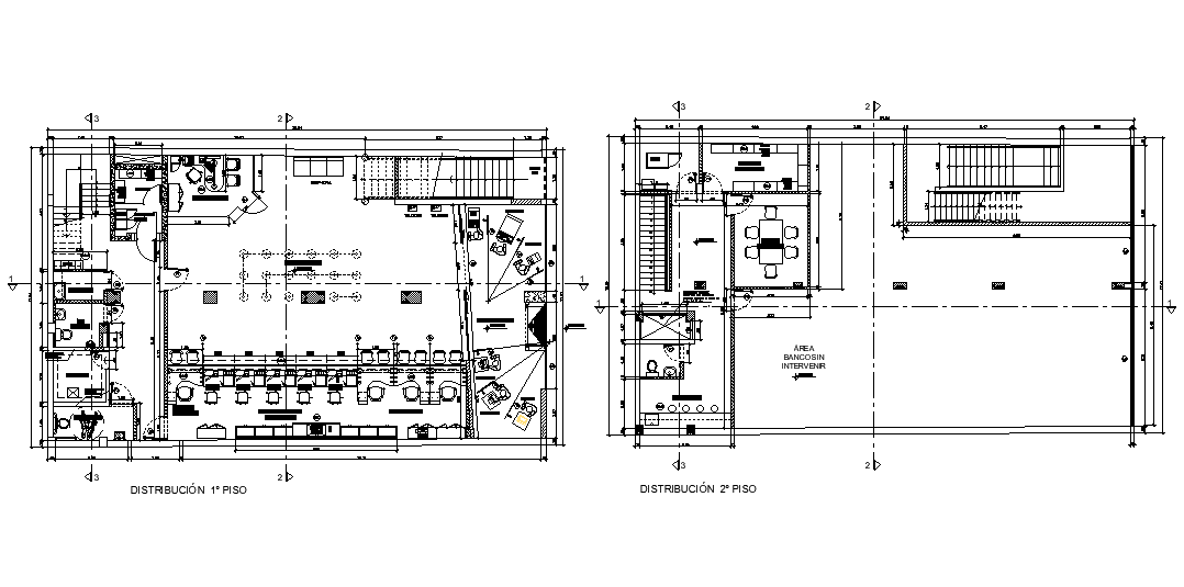
21x12m office plan is given in this Autocad drawing file.Download now.
Description
21x12m office plan is given in this Autocad drawing file. This is G+ 1 office building. Reception, waiting area, gent’s toilet, ladies toilet, office cabins, dining area and conference room is available. For more details download the Autocad drawing file. Thank you for downloading the Autocad drawing file and other CAD program files from our website.
Uploaded by:

