10x7m office plan is given in this Autocad drawing file.Download now.
Description
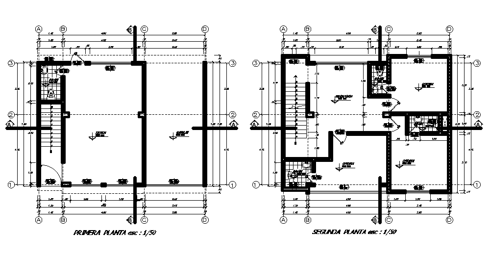
10x7m office plan is given in this Autocad drawing file. This is G+ 1 office building. In the ground floor car parking, small shop and toilet is available. In the first floor reception, office rooms, gent’s toilet and ladies toilet is available. For more details download the Autocad drawing file. Thank you for downloading the Autocad drawing file and other CAD program files from our website.
Uploaded by:

