46x20m office plan is given in this Autocad drawing file.Download now.
Description
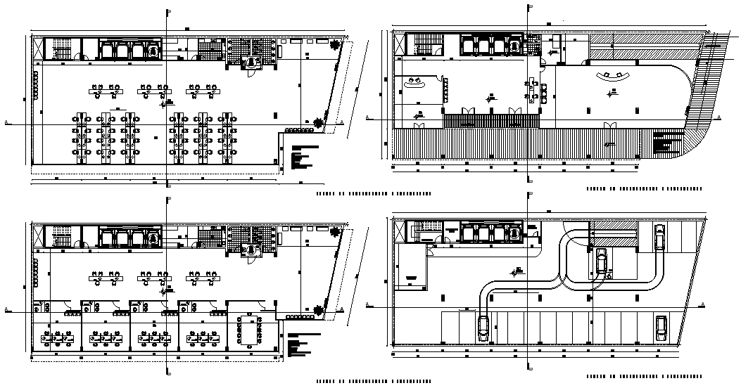
46x20m office plan is given in this Autocad drawing file. This is multistory office building. Ground floor is provided for car parking. In other floors, office cabins, cafeteria, work area, control room, network control room, gent’s toilet and ladies toilet is available. For more details download the Autocad drawing file. Thank you for downloading the Autocad drawing file and other CAD program files from our website.
Uploaded by:

