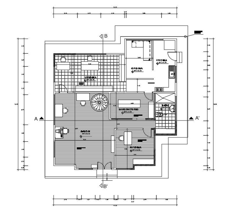
12x12m office plan is given in this Autocad drawing file.Download now.
Description
12x12m office plan is given in this Autocad drawing file. This is single story office building. Reception, kitchen, office cabins, gent’s toilet, ladies toilet and patio is available. For more details download the Autocad file. Thank you for downloading the Autocad file and other CAD program files from our website.
Uploaded by:

