13x32m Beauty Spa Plan AutoCAD DWG Drawing with Furniture Layout
Description
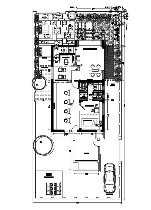
This AutoCAD DWG file showcases a comprehensive 13x32-meter beauty spa layout, perfectly suited for interior designers, architects, and spa developers. The single-story plan includes a reception area, retail section, threading and facial rooms, salon hair wash stations, wash areas, changing rooms, toilets, lounge, and pergolas. Complete furniture arrangements are provided for each zone, ensuring optimal space management and a smooth client experience. With precise dimensions, clear annotations, and professional architectural detailing, this drawing enables efficient planning, visualization, and execution of a functional and elegant beauty spa design.
Uploaded by:

