10x22m Ground Floor Villa Electrical Layout DWG File
Description
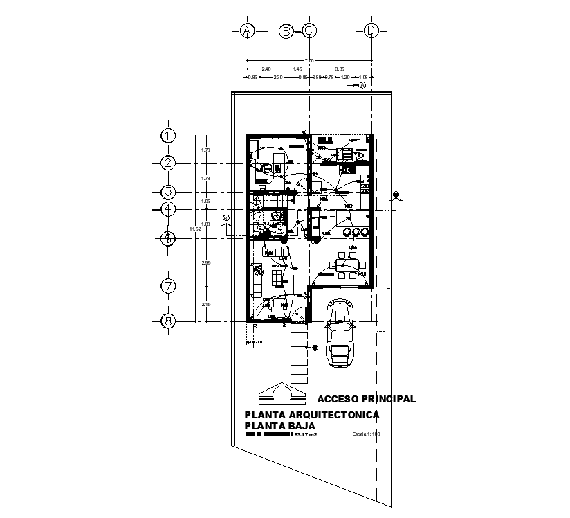
An electrical layout of 10x22m ground floor villa plan has been given in this 2D AutoCAD drawing model. This is G+ 1 villa building. Car parking, access area, dining area, living hall, common bathroom, service area, kitchen, and study room is available. For more details download the AutoCAD drawing file. Thank you for downloading the AutoCAD drawing file and other CAD program files from our website.
File Type:
3d max
File Size:
682 KB
Category::
Electrical
Sub Category::
Electrical Automation Systems
type:
Gold
Uploaded by:
