Plumbing layout of 10x17m single family house plan is given in this AutoCAD drawing model. Download the Autocad model.
Description
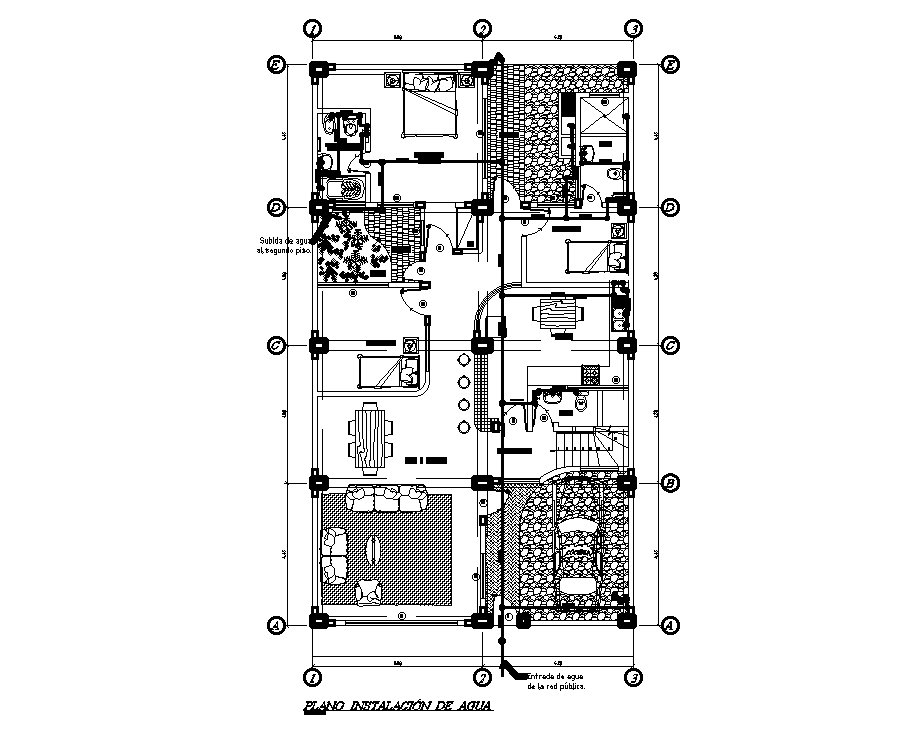
Plumbing layout of 10x17m single family house plan is given in this AutoCAD drawing model. This is single story house building. The living area, car parking, dining area, common bathroom, garden, master bedroom with attached bathroom & bath tub, kid’s room and guest room with attached bathroom are available. For more details download the AutoCAD drawing file. Thank you for downloading the AutoCAD drawing file and other CAD program files from our website.
File Type:
DWG
File Size:
1.9 MB
Category::
Dwg Cad Blocks
Sub Category::
Autocad Plumbing Fixture Blocks
type:
Free
Uploaded by:

