12m length of the beam is given for 22x32m basketball court in this AutoCAD drawing model. Download the Autocad model.
Description
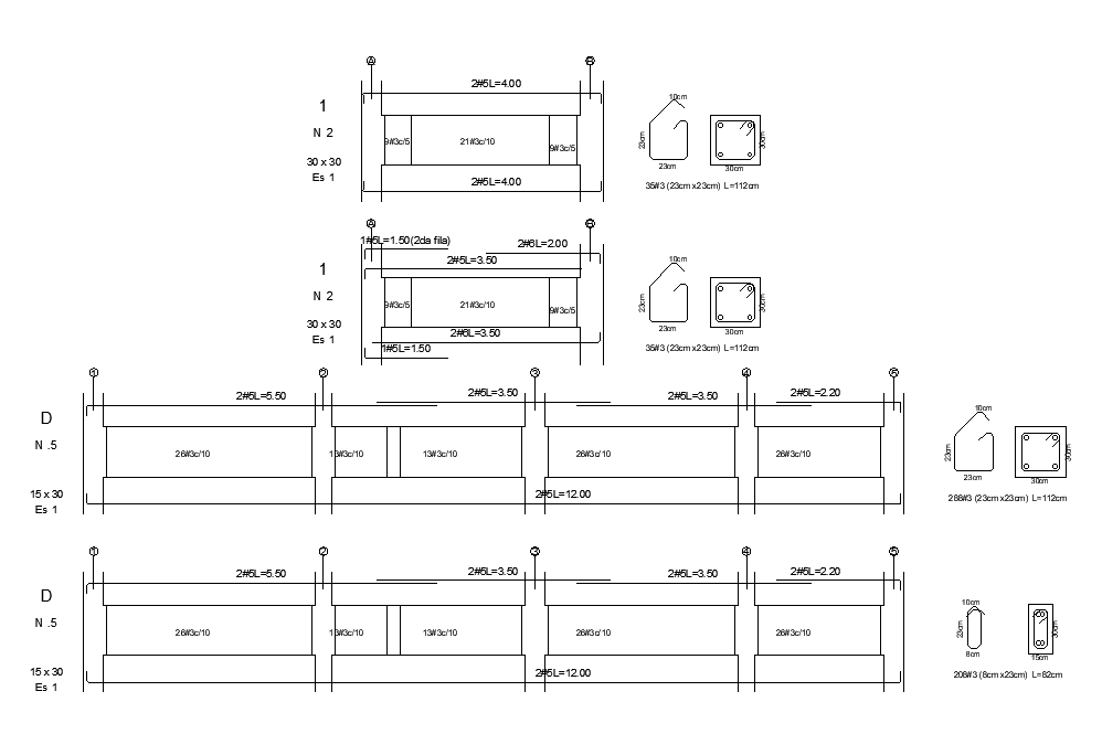
12m length of the beam is given for 22x32m basketball court in this AutoCAD drawing model. Reinforcement details are mentioned in this model. Length of the each beam is given in this file. For more details download the AutoCAD drawing file. Thank you for downloading the AutoCAD drawing file and other CAD program files from our website.
Uploaded by:

