Plumbing installation of 6x19m house plan is given in this 2D AutoCAD drawing model.Download now.
Description
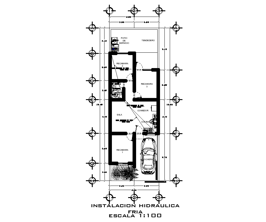
Plumbing installation of 6x19m house plan is given in this 2D AutoCAD drawing model. This is single story house building. Car parking, kitchen, dining area, living hall, patio service, master bedroom, guest room, kid’s room, and garden is available. For more details download the AutoCAD drawing file. Thank you for downloading the AutoCAD drawing file and other CAD program files from our website.
File Type:
DWG
File Size:
556 KB
Category::
Dwg Cad Blocks
Sub Category::
Autocad Plumbing Fixture Blocks
type:
Gold
Uploaded by:

