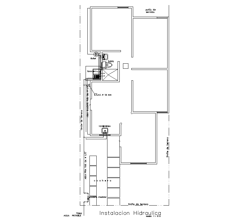
Plumbing layout of 7x17m house plan is given in this AutoCAD drawing file. Download the Autocad model.
Description
Plumbing layout of 7x17m house plan is given in this AutoCAD drawing file. This is single story house building. Living hall, kitchen, dining area, access area, patio, master bedroom with attached water closet, kid’s room with attached closet, guest room and common bathroom is available. For more details download the AutoCAD drawing file. Thank you for downloading the AutoCAD drawing file and other CAD program files from our website.
File Type:
DWG
File Size:
372 KB
Category::
Dwg Cad Blocks
Sub Category::
Autocad Plumbing Fixture Blocks
type:
Gold
Uploaded by:

