9x10m house plan is given in this AutoCAD drawing model. Download now.
Description
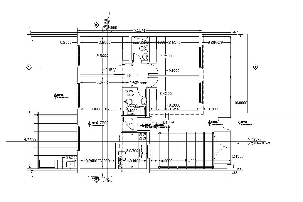
9x10m house plan is given in this AutoCAD drawing model. This is single story house building. Kitchen, dining area, living hall, master bedroom with attached bathroom, kid’s room and common bathroom is available. For more details download the AutoCAD drawing file. Thank you for downloading the AutoCAD drawing file and other CAD program files from our website.
Uploaded by:

