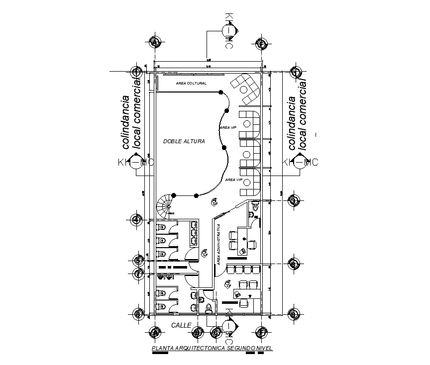
16x36m first floor restaurant plan is given in this AutoCAD drawing model.Download the Autocad model.
Description
16x36m first floor restaurant plan is given in this AutoCAD drawing model. This is G+ 1 restaurant building. Manager room, secretary room, gent’s toilet, ladies toilet, and patio is available on the first floor. For more details download the AutoCAD drawing file. Thank you for downloading the AutoCAD drawing file and other CAD program files from our website.
Uploaded by:
