10x22m ground floor villa plan has been given in this 2D AutoCAD drawing model. Download now.
Description
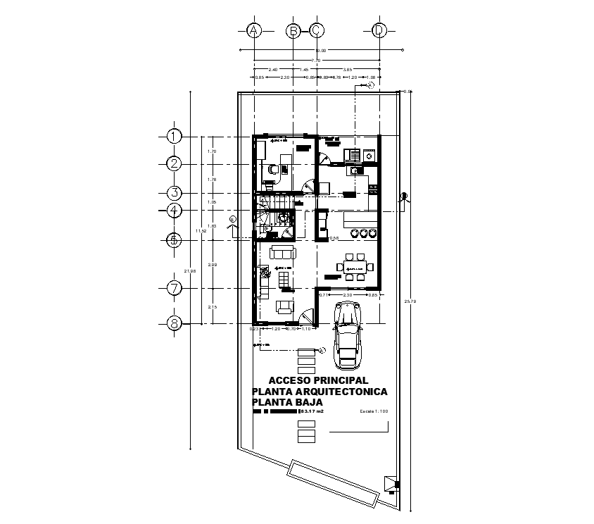
10x22m ground floor villa plan has been given in this 2D AutoCAD drawing model. This is G+ 1 villa building. Car parking, access area, dining area, living hall, common bathroom, service area, kitchen, and study room is available. For more details download the AutoCAD drawing file. Thank you for downloading the AutoCAD drawing file and other CAD program files from our website.
Uploaded by:
