Column layout of 17x16m first floor house plan is given in this AutoCAD drawing model. Download now.
Description
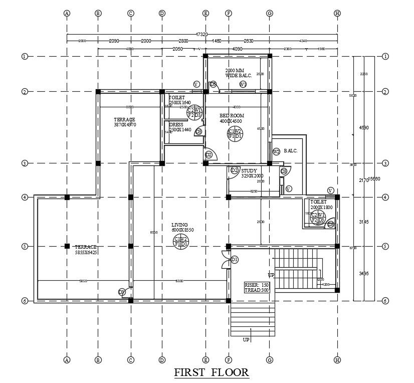
Column layout of 17x16m first floor house plan is given in this AutoCAD drawing model. This is G+ 1 house building. Master bedroom with attached bathroom & dressing room, balcony, study room, living area, common bathroom, and terrace is available. For more details download the AutoCAD drawing file. Thank you for downloading the AutoCAD drawing file and other CAD program files from our website.
Uploaded by:

