30'x55' House Plan Free Architectural Elevation Drawing File Set
Description
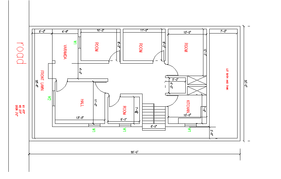
4BHK Simple House Layout Plan With Dimension In AutoCAD File; this is the simple house ground floor plan CAD drawing shows kitchen, hall, lobby, bathroom and 4 bedrooms with dimension and direction details. download free pdf file of house layout plan CAD Drawing.

Uploaded by:
Sonu
Kumawat
