House Plan 38'X21' Download Free PDF File
Description
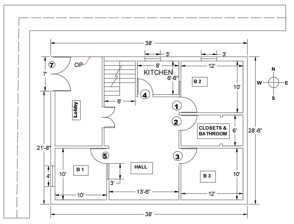
3BHK Simple House Layout Plan With Dimension In AutoCAD File; this is the simple house ground floor plan CAD drawing shows kitchen, hall, lobby, bathroom and 3 bedrooms with dimension and direction details. download free pdf of house layout plan CAD Drawing.

Uploaded by:
Sonu
Kumawat

