Column layout of 70x110m mother & child hospital ground floor plan is given in this AutoCAD drawing model.Download now.
Description
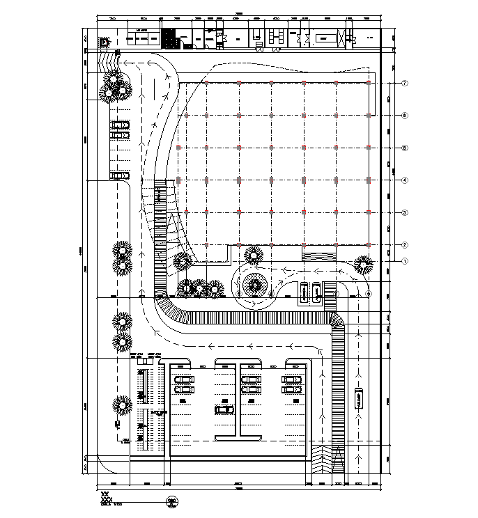
Column layout of 70x110m mother & child hospital ground floor plan is given in this AutoCAD drawing model. This is G+ 4 hospital building. Car parking, garden, lift, gate exit, gate entrance, pharmacy, gent’s toilet, and ladies toilet is available.For more details download the AutoCAD file. Thank you for downloading the AutoCAD file and other CAD program files from our website.
Uploaded by:

