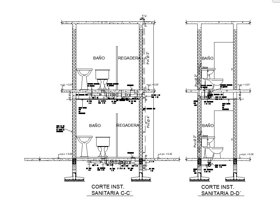
8x12m house plan of the bathroom building section view is given in this AutoCAD model.
Description
8x12m house plan of the bathroom building section view is given in this AutoCAD model. In this, G+ 1 building bathrooms are shown. These section views are given from foundation to first floor slab level. For more details download the AutoCAD drawing file. Thank you for downloading the AutoCAD drawing file and other CAD program files from our website.
Uploaded by:

