8x12m house plan of bathroom section and water closet is given in this Autocad drawing model.Download now.
Description
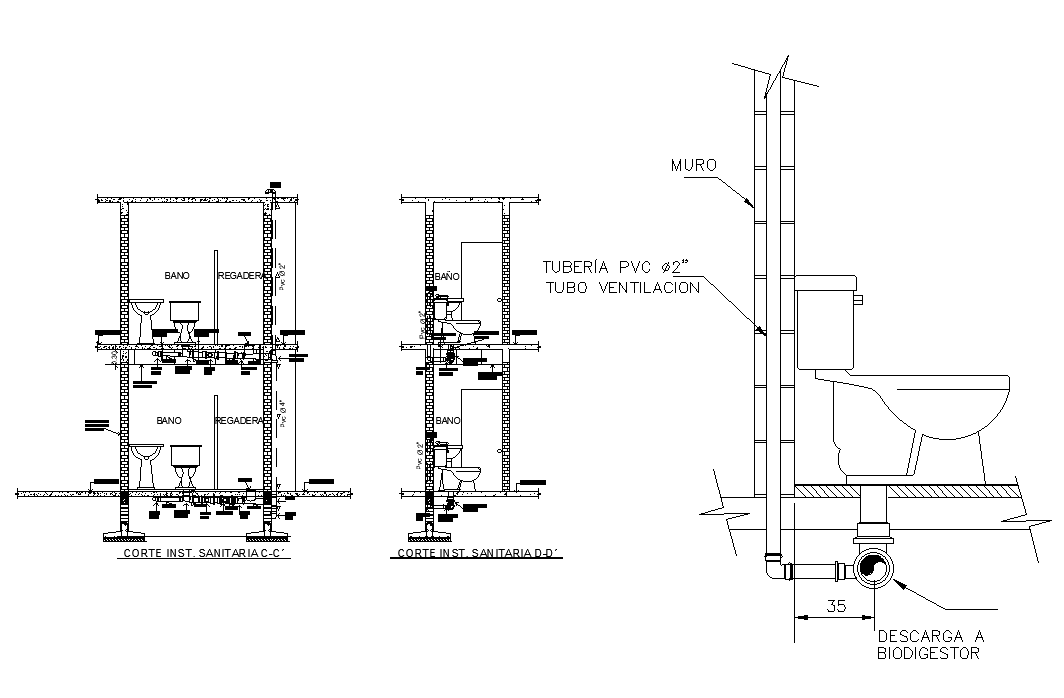
8x12m house plan of bathroom section and water closet is given in this Autocad drawing model. Discharge of biodigestor is given in this model. These section views are given for two floors. For more details download the AutoCAD drawing file. Thank you for downloading the AutoCAD drawing file and other CAD program files from our website.
File Type:
DWG
File Size:
1001 KB
Category::
Dwg Cad Blocks
Sub Category::
Autocad Plumbing Fixture Blocks
type:
Gold
Uploaded by:

