23x23m first floor hostel plan is given in this AutoCAD drawing model. Download now.
Description
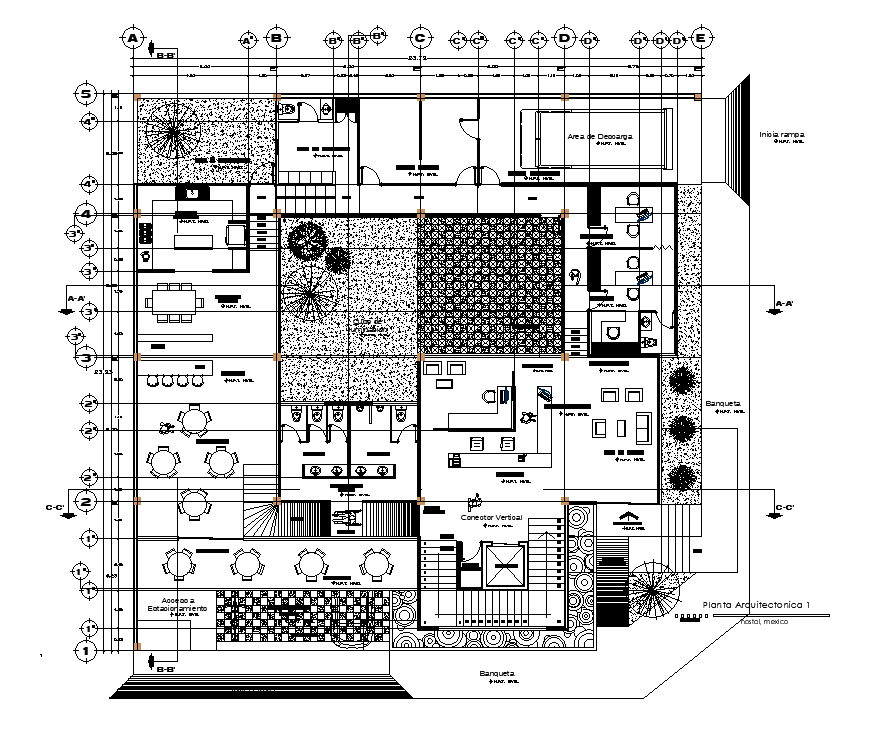
23x23m first floor hostel plan is given in this AutoCAD drawing model. This is G+ 4 hostel building. Reception, café bar, dining area, garden, kitchen, store room, gent’s toilet, ladies toilet, and sitting area is available.For more details download the AutoCAD file. Thank you for downloading the AutoCAD file and other CAD program files from our website.
Uploaded by:

