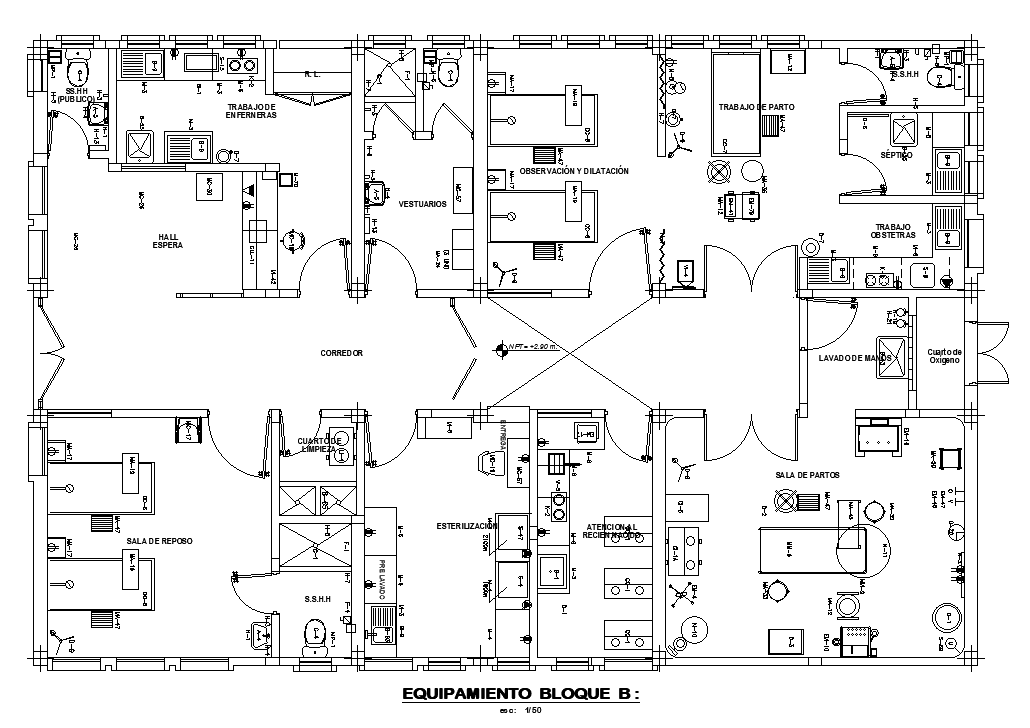
Equipment detail of 18x11m hospital obstetric center plan is given in this AutoCAD drawing model. Download now.
Description
Equipment detail of 18x11m hospital obstetric center plan is given in this AutoCAD drawing model. This is single story hospital building. Labor, observation and dilation, sterilization, attention to the newborn, delivery room, gent’s toilet, ladies toilet and other details are available on this floor. For more details download the AutoCAD file. Thank you for downloading the AutoCAD file and other CAD program files from our website.
Uploaded by:

