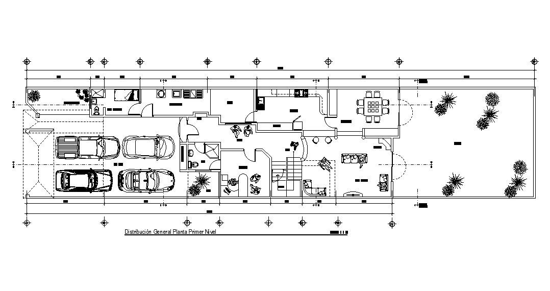
40x11m Ground Floor House Plan in AutoCAD Drawing Model
Description
40x11m ground floor house plan is given in this AutoCAD drawing model. This is G+ 1 house building. Car parking, study room, kitchen, dining area, patio, lavenderia, common bathroom, and maid room is available. For more details download the AutoCAD file. Thank you for downloading the AutoCAD file and other CAD program files from our website.
Uploaded by:

