40x11m first floor house plan is given in this AutoCAD drawing model. This is G+ 1 house building.Download now.
Description
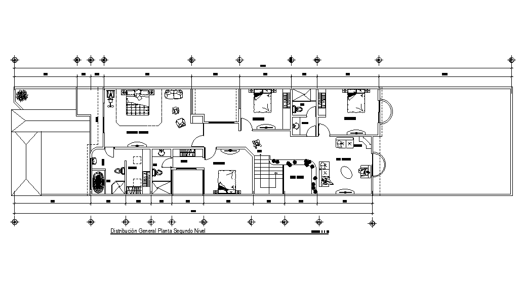
40x11m first floor house plan is given in this AutoCAD drawing model. This is G+ 1 house building. Master bedroom with attached bathroom & bath tub, kid’s room with attached bathroom, family lounge area, two guest room, and common bathroom are available. For more details download the AutoCAD file. Thank you for downloading the AutoCAD file and other CAD program files from our website.
Uploaded by:

