16x7m house plan is given in this AutoCAD drawing model.Download now.
Description
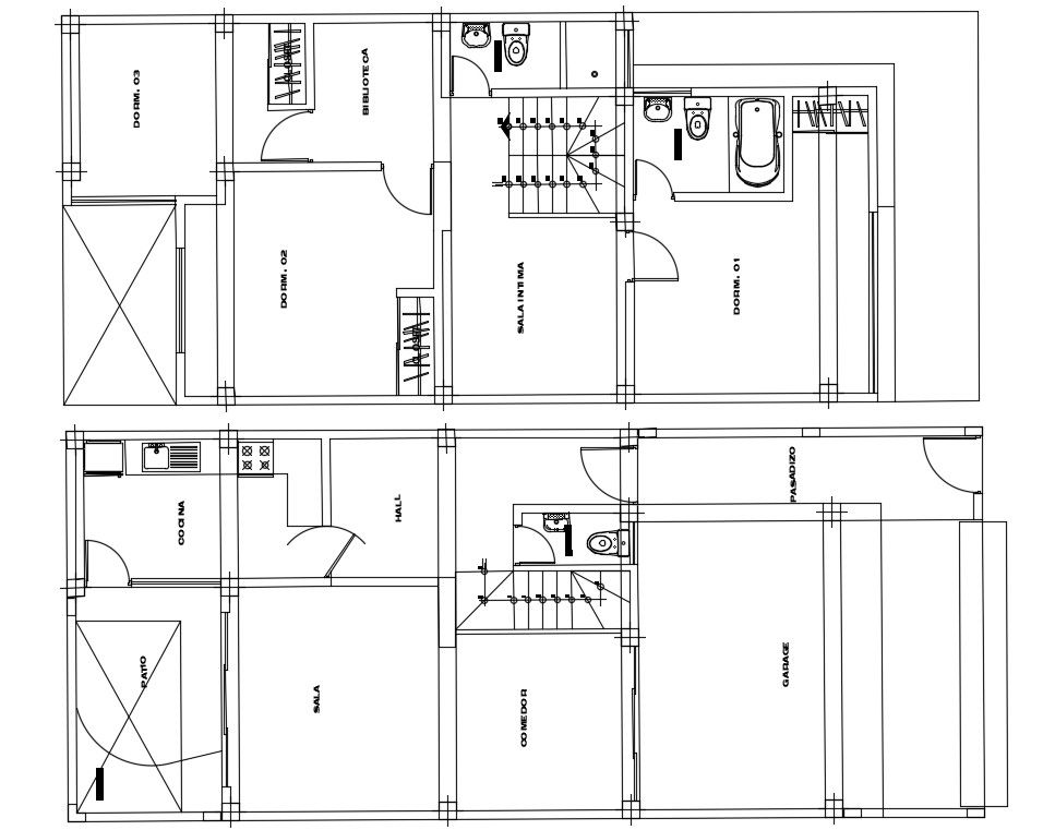
16x7m house plan is given in this AutoCAD drawing model. This is G+ 1 house building. Car parking, kitchen, dining hall, passage, living hall, garden, and patios are available on the ground floor. Master bedroom with attached bathroom, guest room with dressing area, kid’s room, common bathroom, and family lounge area are available on the first floor.For more details download the AutoCAD file. Thank you for downloading the AutoCAD file and other CAD program files from our website.
Uploaded by:
