Isometric view of the 18x7m local shop drainage detail drawing is given.Download now.
Description
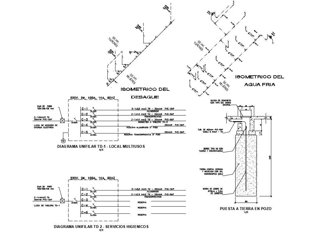
Isometric view of the 18x7m local shop drainage detail drawing is given. In this drinking water line is given. Other details are mentioned in this drawing file. For more details download the AutoCAD file. Thank you for downloading the AutoCAD file and other CAD program files from our website.
File Type:
DWG
File Size:
297 KB
Category::
Dwg Cad Blocks
Sub Category::
Sanitary CAD Blocks And Model
type:
Gold
Uploaded by:

