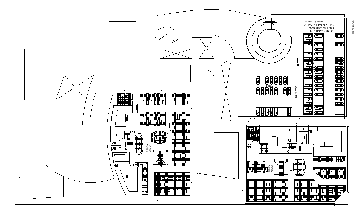
Roof level of 182x102m shopping mall plan is given in this AutoCAD model. Download now.
Description
Roof level of 182x102m shopping mall plan is given in this AutoCAD model. This is G+ 1 shopping building. Car parking, gent’s toilet, ladies toilet, restaurant, and local shops areas are available on the ground floor. For more details download the AutoCAD drawing file. Thank you for downloading the AutoCAD drawing file and other CAD program files from our website.
Uploaded by:
