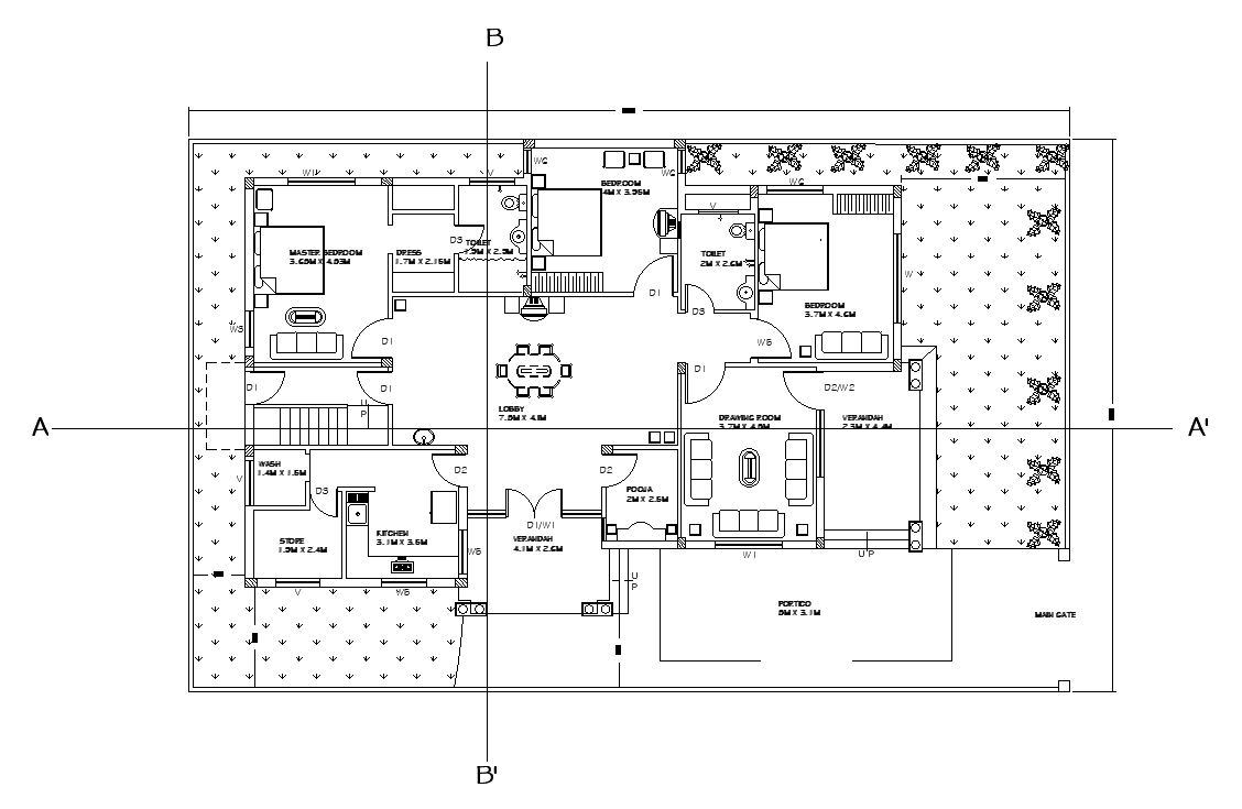
Column layout of 12x8m ground floor villa plan is given in this AutoCAD drawing model. Download now.
Description
Column layout of 12x8m ground floor villa plan is given in this AutoCAD drawing model. This is G+ 1 house building. Kitchen, store room, puja room, lobby, wash area, drawing area, verandah, master bedroom with attached bathroom, kid’s room, guest room, and common bathroom are available on the ground floor. For more details download the AutoCAD drawing file. Thank you for downloading the AutoCAD drawing file and other CAD program files from our website.
Uploaded by:
