Current socket of 12x8m first floor villa plan is given in this AutoCAD drawing model. Download now.
Description
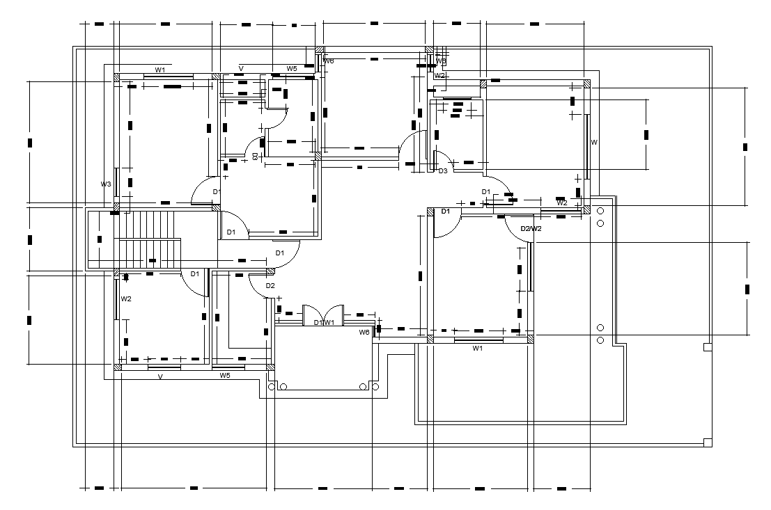
Current socket of 12x8m first floor villa plan is given in this AutoCAD drawing model. This is G+ 1 house building. Drawing room, dining hall, servant room, kitchen, balcony, master bedroom, kid’s room, guest room, and common bathroom are available. For more details download the AutoCAD drawing file. Thank you for downloading the AutoCAD drawing file and other CAD program files from our website.
Uploaded by:

