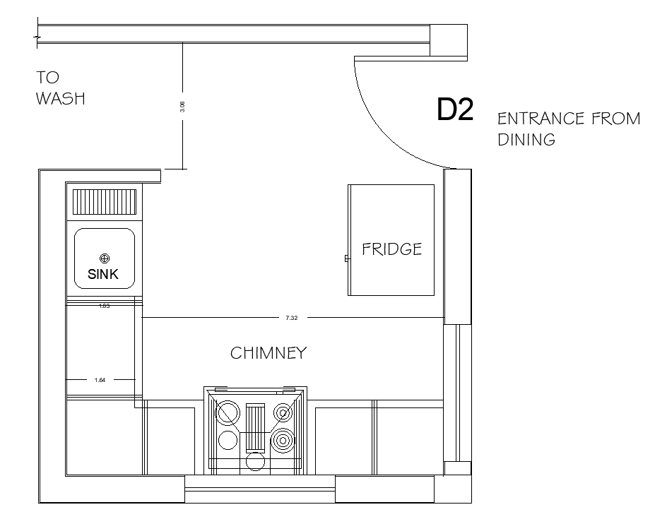
12x8m house plan of kitchen view is given in this AutoCAD model. Download now.
Description
12x8m house plan of kitchen view is given in this AutoCAD model. This is given with fridge location details. Sink, gas burners, wash area, and chimney are available. For more details download the AutoCAD drawing file. Thank you for downloading the AutoCAD drawing file and other CAD program files from our website.
Uploaded by:

