45x10m restaurant plan is given in this AutoCAD drawing model. Download now.
Description
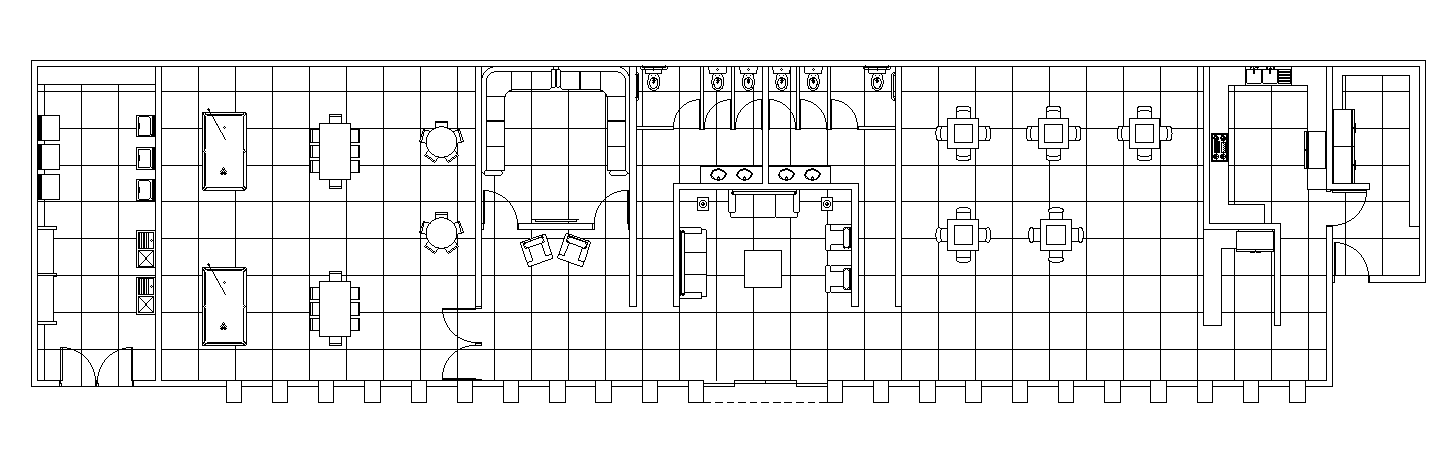
45x10m restaurant plan is given in this AutoCAD drawing model. This is single story restaurant building. Kitchen, service area, store room, dining area, waiting area, gent’s toilet, and ladies toilets are available. For more details download the AutoCAD drawing file. Thank you for downloading the AutoCAD drawing file and other CAD program files from our website.
Uploaded by:

