33x12m office plan is given in this AutoCAD drawing model. Download now.
Description
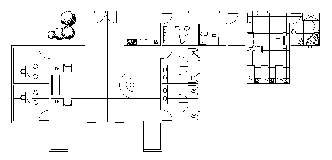
33x12m office plan is given in this AutoCAD drawing model. This is single story office building. Office cabins, reception, waiting room, kitchen, director room with attached toilet, secretary room with attached toilet, and other details are available on this plan.For more details download the AutoCAD drawing file. Thank you for downloading the AutoCAD drawing file and other CAD program files from our website.
Uploaded by:

