13x15m residential house plan is given in this AutoCAD model. Download now.
Description
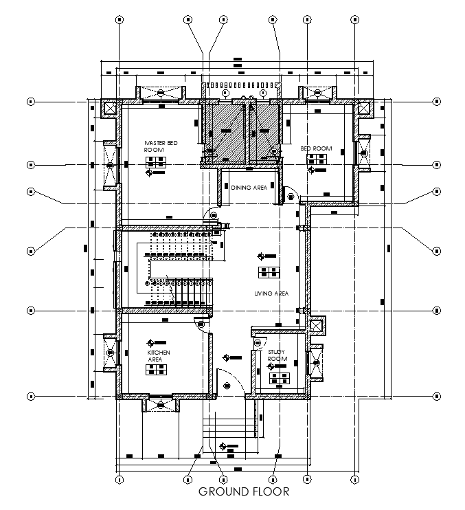
13x15m residential house plan is given in this AutoCAD model. This is G+ 1 residential house building. Kitchen, living area, study room, dining area, master bedroom with attached bathroom, kid’s room with attached bathroom, and staircase are available. For more details download the AutoCAD drawing file. Thank you for downloading the AutoCAD drawing file and other CAD program files from our website.
Uploaded by:

