Layout of 13x15m house plan of terrace floor staircase plan is given in this AutoCAD model. Download now.
Description
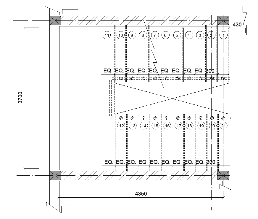
Layout of 13x15m house plan of terrace floor staircase plan is given in this AutoCAD model. The length and breadth of the staircase is 4350x3700mm. 230mm thickness of external wall is provided. For more details download the AutoCAD drawing file. Thank you for downloading the AutoCAD drawing file and other CAD program files from our website.
Uploaded by:

