Sanitary layout of 8x14m ground floor residential house plan is given in this AutoCAD model.Download now.
Description
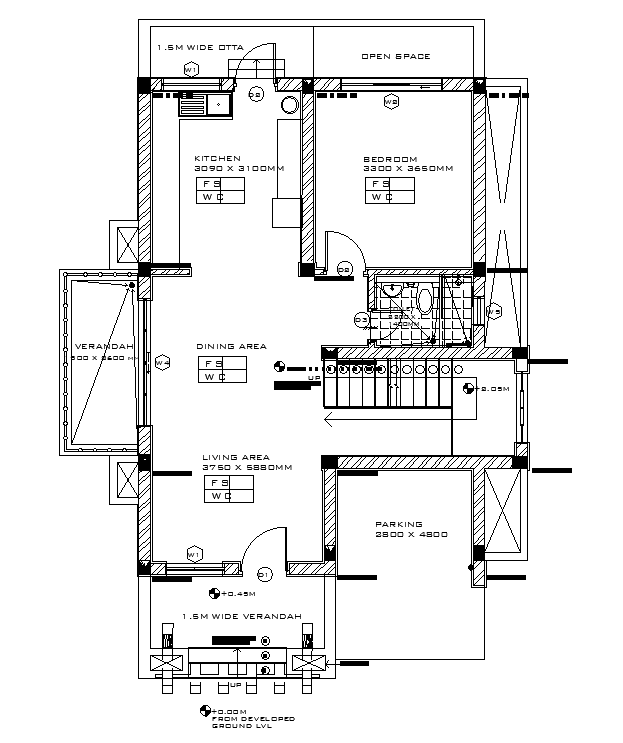
Sanitary layout of 8x14m ground floor residential house plan is given in this AutoCAD model. This is G+ 1 residential house building. Car parking, kitchen, living area, dining area, master bedroom, common bathroom, and staircase are available. For more details download the AutoCAD drawing file. Thank you for downloading the AutoCAD drawing file and other CAD program files from our website.
File Type:
DWG
File Size:
100 KB
Category::
Dwg Cad Blocks
Sub Category::
Sanitary CAD Blocks And Model
type:
Gold
Uploaded by:

