28’x146’ banquet hall plan is given in this AutoCAD drawing model. Download now.
Description
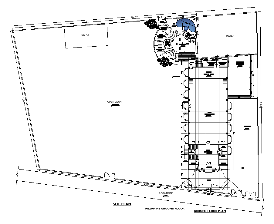
28’x146’ banquet hall plan is given in this AutoCAD drawing model. This is G+ 1 banquet hall building. Office, banquet hall, lobby, gent’s toilet, ladies toilet, stage, green room, servant quarter, and swimming pool are available. For more details download the AutoCAD drawing file. Thank you for downloading the AutoCAD drawing file and other CAD program files from our website.
Uploaded by:

