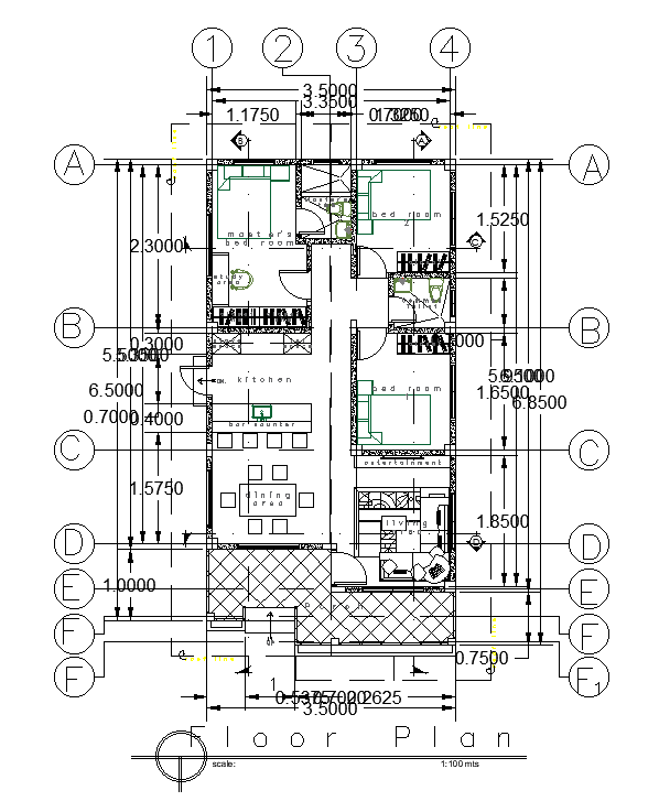
7x13m residential house plan is given in this AutoCAD drawing model.Download now.
Description
7x13m residential house plan is given in this AutoCAD drawing model. This is single story residential building. Porch, dining area, living hall, bar counter, kitchen, master bedroom with attached bathroom, guest room, kid’s room, and common bathroom are available. For more details download the AutoCAD drawing file. Thank you for downloading the AutoCAD drawing file and other CAD program files from our website.
Uploaded by:

