Detail of the pergola elevation view is given in this AutoCAD model. Download now.
Description
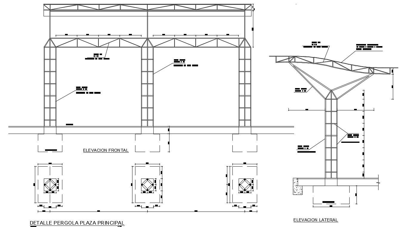
Detail of the pergola elevation view is given in this AutoCAD model. The column cross view is 400x400mm which is given for the pergola. For more details download the AutoCAD drawing file. Thank you for downloading the AutoCAD drawing file and other CAD program files from our cadbull website.
Uploaded by:

