24’x38’ house plan is given in this AutoCAD drawing model. Download now.
Description
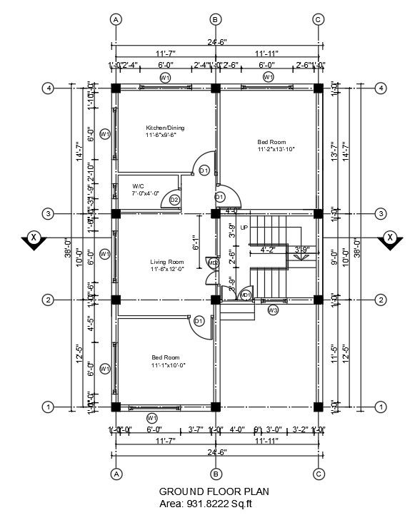
24’x38’ house plan is given in this AutoCAD drawing model. This is G+ 2 house building. A kitchen cum dining area, guest room, common bathroom, living room, and master bedroom are available. For more details download the AutoCAD drawing file. Thank you for downloading the AutoCAD drawing file and other CAD program files from our website.
Uploaded by:
