A layout of 25x20m ground floor commercial shop plan is given in this AutoCAD drawing model. Download now.
Description
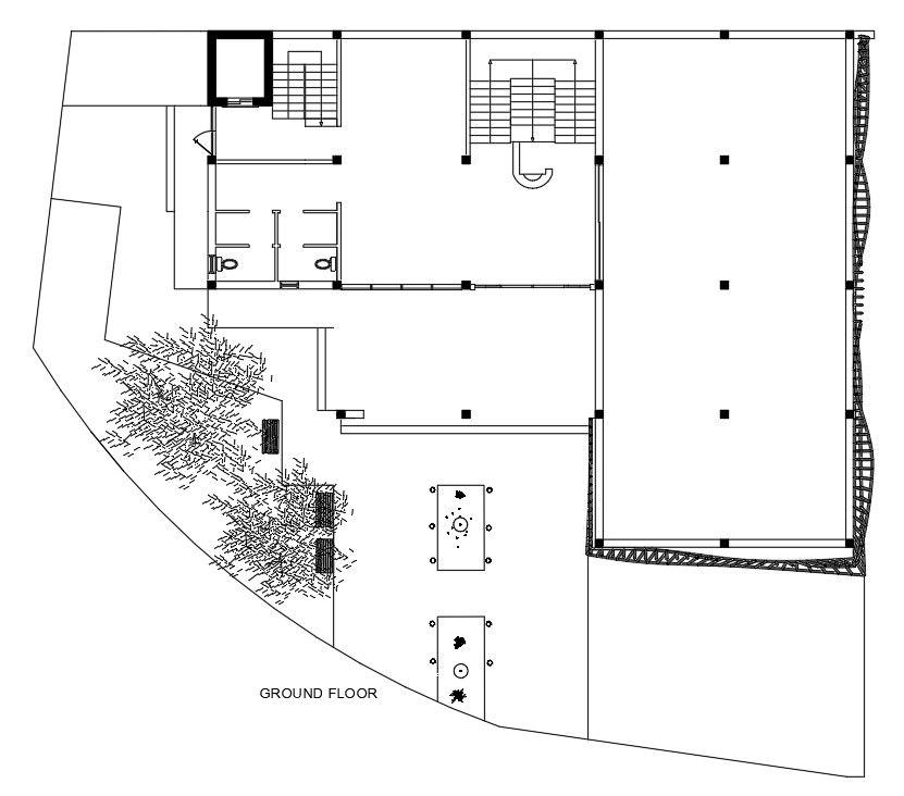
A layout of 25x20m ground floor commercial shop plan is given in this AutoCAD drawing model. This is G+ 3 commercial building. An entrance room, lobby, curator’s office, shops, male toilet, female toilet, elevator, reception, and museum are available. For more details download the AutoCAD drawing file. Thank you for downloading the AutoCAD drawing file and other CAD program files from our website.
Uploaded by:

